Sie haben Fragen?
02161 / 2 47 59-0
Sie haben Fragen?
02161 / 2 47 59-0

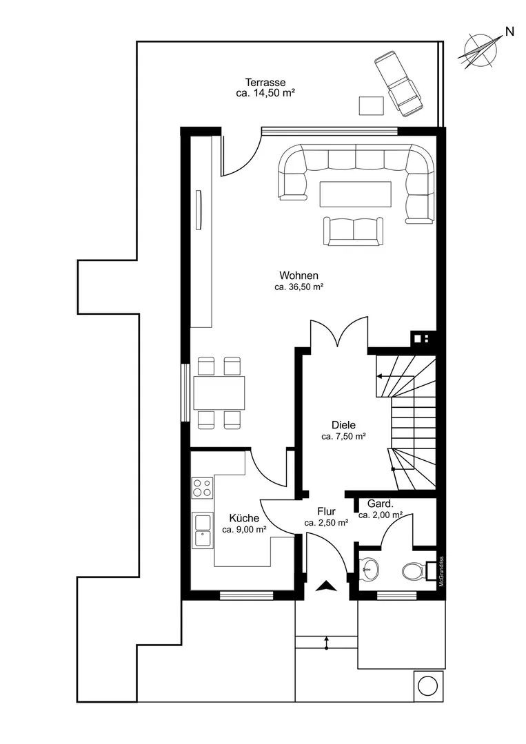
Haus zum Kauf 53125 Bonn / Röttgen

Modernisierte Doppelhaushälfte in Bonn-Röttgen

Bilder anzeigen (16)
  • 715.000 €
  • Objekt-Nr.: 66275-8588
  • 6 Zimmer
  • 5 Schlafzimmer
  • 2 Badezimmer
Teilen auf:

*Pflichtfelder Ihre Anfrage

Neuste Immobilien

53773 Hennef - HennefAttraktives Ladenlokal - 154 m² Verkaufsfläche in zentraler Innenstadtlage- Teilung möglich

  • 1
Nutzfl.: 185 m²

Miete zzgl. NK
2.500 €

58089 Hagen - ZentrumSchönes ca. 34 m² großes 1-Zimmer-Appartment mit großem Wohnraum und Tageslichtbad

  • 1
  • 1
  • 1
Wohnfl.: 34 m²

Miete zzgl. NK
208,86 €