Sie haben Fragen?
02161 / 2 47 59-0
Sie haben Fragen?
02161 / 2 47 59-0

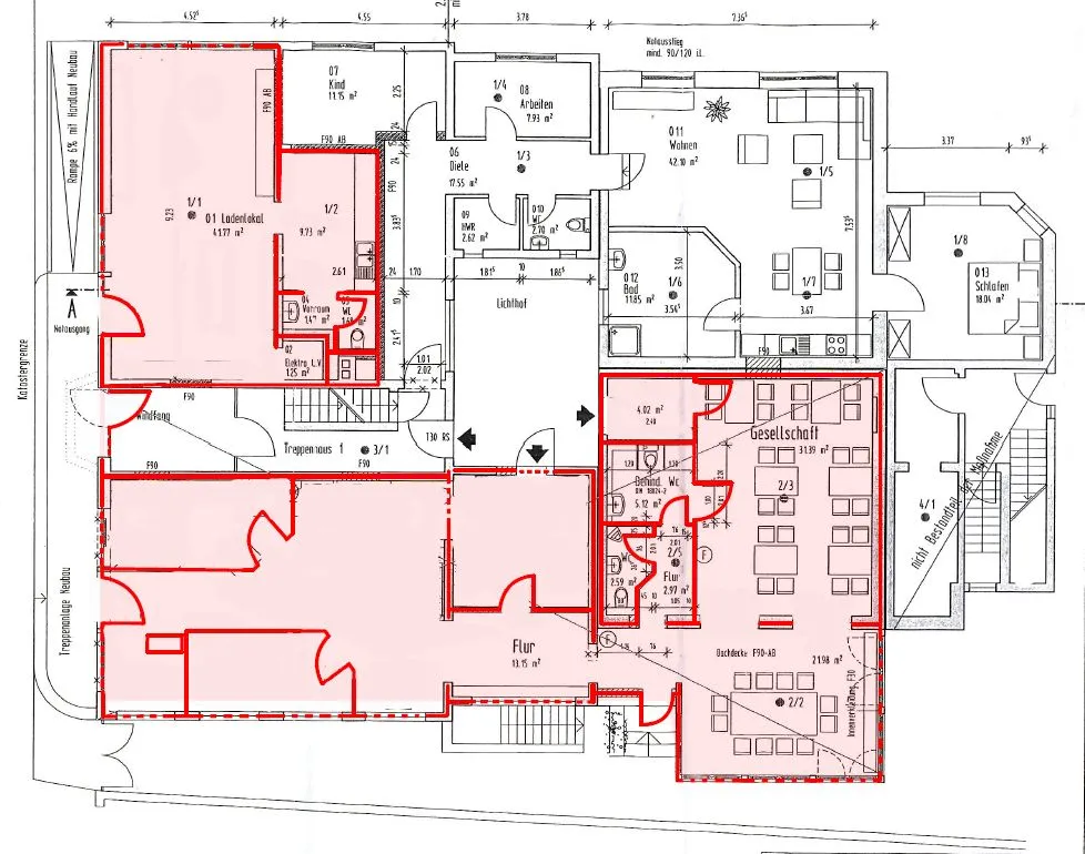
Büro/Praxis zur Miete 59427 Unna

Barrierefreies Büro zur Miete in Unna Massen

Bilder anzeigen (11)
  • 1.343 €
  • Objekt-Nr.: 68336-7854
  • 4 Zimmer
  • 4 Stellplätze
  • 158 m² Bürofläche
Teilen auf:

*Pflichtfelder Ihre Anfrage

Neuste Immobilien

51467 Bergisch Gladbach - SchildgenVerkaufsstart in Schildgen: 3-Zimmer-Eigentumswohnung mit großer Sonnenterrasse und Garage

  • 3
Wohnfl.: 78 m²

Kaufpreis
195.000 €